
UPDATED:
Key Details
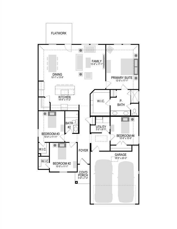
Property Type Single Family Home
Sub Type Single Family Residence
Listing Status Active
Purchase Type For Sale
Square Footage 1,800 sqft
Subdivision Windmore
MLS Listing ID 21149978
Style Contemporary/Modern,Craftsman
Bedrooms 4
Full Baths 2
HOA Fees $975/ann
HOA Y/N Mandatory
Year Built 2025
Lot Size 7,187 Sqft
Acres 0.165
Lot Dimensions 50X115
Property Sub-Type Single Family Residence
Property Description
Location
State TX
County Collin
Community Community Pool, Fitness Center, Park, Tennis Court(S)
Direction Take TX-121 toward McKinney and continue onto TX-399 Spur E. Turn right onto Harry McKillop Blvd and continue onto FM 546 until you get to CO Rd 398. Take a left then turn right onto S Beauchamp Blvd. Turn left onto Wind Ridge Ln and another left onto Windmill Ln and the Sales Center will be located
Rooms
Dining Room 1
Interior
Interior Features Cable TV Available, Decorative Lighting, Eat-in Kitchen, High Speed Internet Available, Kitchen Island, Open Floorplan, Pantry, Vaulted Ceiling(s), Walk-In Closet(s)
Heating Central
Cooling Ceiling Fan(s), Central Air
Flooring Carpet, Laminate, Tile
Appliance Built-in Gas Range, Dishwasher, Disposal, Microwave, Convection Oven, Tankless Water Heater
Heat Source Central
Laundry Electric Dryer Hookup, Utility Room, Full Size W/D Area, Washer Hookup
Exterior
Exterior Feature Covered Patio/Porch, Rain Gutters, Lighting, Private Yard
Garage Spaces 2.0
Fence Back Yard, Wood
Community Features Community Pool, Fitness Center, Park, Tennis Court(s)
Utilities Available City Sewer, City Water
Roof Type Composition
Total Parking Spaces 2
Garage Yes
Building
Story One
Foundation Slab
Level or Stories One
Structure Type Brick,Rock/Stone,Siding
Schools
Elementary Schools James
Middle Schools Mattei
High Schools Lovelady
School District Princeton Isd
Others
Virtual Tour https://www.propertypanorama.com/instaview/ntreis/21149978

GET MORE INFORMATION

QUICK SEARCH
- Homes for Sale in Fort Worth
- Homes for Sale in Arlington
- Homes for Sale in Mansfield
- Homes for Sale in North Richland Hills
- Homes for Sale in Keller
- Homes for Sale in Southlake
- Homes for Sale in Colleyville
- Homes for Sale in Euless
- Homes for Sale in Bedford
- Homes for Sale in Grapevine
- Homes for Sale in Hurst
- Homes for Sale in Trophy Club
- Homes for Sale in Westlake




